Page 3 of our investigation into the death of Reuters cameramen in Iraq and the Wikileaks Collateral Murder leak. The series starts here and covers The General & The CIA Director & Secretary of State.
Here is the Military investigators’s report, completed in one week. The order is given …
The fix is in: Military investigation into deaths of Reuters staff in Iraq
The day after the 12th July 2007 shooting of Reuters news team Namir Noor-Eldeen and Saeed Chmagh, an internal military investigation was launched which took sworn statements from those U.S Army personnel present. The military investigator was ordered to provide the report by 19th July, in one week.
These recommendations written BEFORE the investigation began. The blame for the deaths was pre-determined by General Vincent K. Brooks … and he blamed the Reuters men for their own deaths by not wearing identifying vests and not notifying the U.S. Military where they were.

There is no sworn statement from the two-man crew of Apache helicopter ‘Crazy Horse 1-8’ in the report, nor from the radio operator he was speaking with, nor the commander who gave the order to open fire.
Only sworn statements from the platoon on the ground were included. They started to arrive at the scene eight minutes after the van was shot up, according to Ethan McCord, former specialist, U.S. Army – the man seen in the footage carrying a wounded child from the van.
1EarthMedia found the ‘Report of Investigation UP AR 15-6′ on the internet’s Wayback Machine: Court documents for Assange
INVESTIGATION INTO CIVILIAN CASUALTIES RESULTING FROM AN ENGAGEMENT ON 12 JULY 2007 IN THE NEW BAGHDAD DISTRICT OF BAGHDAD, IRAQ
Report of Investigation UP AR 15-6
MAJ (redacted) (b)(6), (b)(3), Investigating Officer
2ND BRIGADE COMBAT TEAM
2ND INFANTRY DIVISION (MND-B)
2-2 ID_Civ Death in Cbt Ops (Reuters Employees) 12JUL07 IO MAJ (b)(6), (b)(3)
________________________________________
These first ten pages are the appointments, terms of reference and orders for the investigators. Scroll down for their findings.
Legal Review
Appointment Orders
DA Form 1574
________________________________________
These five pages are the findings of the investigators, their commentary on the attached photos, starting at page 11 of the report:
________________________________________
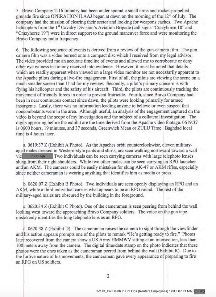
The attached nine photos, taken from the Apache helicopter video, complete with the US military’s added captions and labels. They are rotated for easy viewing.
Exhibit A – 0619:37 Z Still from Apache Gun Camera Film showing cameramen in the company of armed
insurgents.
Exhibit B – 0620:07 Z Still from Apache Gun Camera Film showing insurgents with RPG and AKM.
Exhibit C – 0620:34 Z Still from Apache Gun Camera Film showing cameraman peering around corner of wall at MB 5458 8617.
Exhibit D – 0620:38 Z Still from Apache Gun Camera Film showing cameraman filming US Army HMMWV.
Exhibit E – 0621:07 Z Still from Apache Gun Camera Film showing insurgents clustered tightly about
cameramen.
Exhibit F – 0626:03 Z Still from Apache Gun Camera Film showing 2 Males attempting to load wounded AIF into black van.
Exhibit G – 0631:53 Z Still from Apache Gun Camera Film showing US Soldiers on scene.
Exhibit H – 0639:44 Z Still from Apache Gun Camera Film showing Evacuation of Iraqi girl from black van.
Exhibit I – 0641:11 Z Still from Apache Gun Camera Film showing Evacuation of Iraqi boy from black van.
________________________________________
Sworn statements.
Exhibit J – Sworn Statement of CPT , Company Commander, B/2-16 IN).
Exhibit K – Sworn Statement of 1LT Platoon Leader, B/2-16 IN).
Exhibit L – Sworn Statement of 1LT Mortar Platoon Leader, 2-16 IN).
Exhibit M – Sworn Statement of SPC Medic, B/2-16 IN).
Exhibit N – Sworn Statement of 1LT Platoon Leader, B/2-16 IN).
________________________________________
These photos are the last that Reuters photographer made, retrieved from his cameras that were taken by US military from his body.
Exhibit O – Pictures taken by B/2-16 Personnel during Sensitive Site Exploitation vic
Exhibit P – Photos of MG Lynch dated 24 June 2007. Recovered by Media Exploitation Team from Canon EOS Media Cards vic
Exhibit Q – Photos of Namir Noor Eldeen, Reuters’ News Agency Photographer, dated 11 July 2007.
Recovered by Media Exploitation Team from Canon EOS Media Cards vic
Exhibit R – Photos of US Army HMMWV Dated 12 July 2007. Recovered by Media Exploitation Team from
Canon EOS Media Cards vic .
Exhibit S – Reuters News Story dated 12 July, 2007.
________________________________________
TABLE OF CONTENTS
________________________________________

________________________________________

________________________________________

________________________________________
This background to Julian Assange’s story is part of our investigation into the death of Reuters cameramen in Iraq and the Wikileaks Collateral Murder leak. Our ten page investigation into the death of Reuters camera crew in Iraq.
A quick update on the Julian Assange story
1 The trial of Julian Assange exposes US Rules of Engagement
2 US Military killed two Reuters photographers in Iraq
3 The fix is in: Military investigation into deaths of Reuters staff in Iraq
4 Generals Brookes & Fox meet the Reuters editors
5 Military ignored FOI requests for video of deaths
6 Rules of Engagement between military & civilians
7 Assange: WikiLeaks release Collateral Murder video
8 Definitions, Resources, Transcripts, Apache details
9 Who, what, when and why of the Assange case
10 Wikileaks Collateral Murder video aftermath. Where are they now?














































